Столярное производство в Кемерово          

 +7 (3842) 23-37-10

 +7 (950) 277-52-90

 

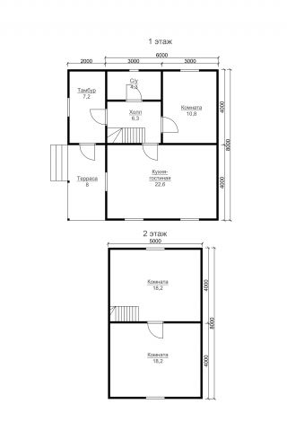
Дом (6,0*8,0м)

Цена: 2 400 000 руб.

Внимание! На всех проектах возможна перепланировка, исходя из Ваших пожеланий.

6000*8000 мм

  Терраса - 8,0 м2

  Тамбур - 7,2 м2

  Кухня-гостиная - 22,6 м2

  Санузел - 4,2 м2

  Комната - 10,8 м2

  Холл - 6,3 м2

2 этаж

  Комната - 16,2 м2

  Комната - 16,2 м2

Для повышения удобства сайта мы используем cookies. Оставаясь на сайте, вы соглашаетесь с политикой их применения